產品簡介/ introduce
QB型防爆橋式起重機所有電機、電器防爆性能符合GB3836.2-2 000《爆炸性氣體環境用防爆電氣設備第2部分:隔爆型“d”》、整機性能符合JB/T5897-1991《防爆橋式起重機》標準之規定,防爆標志為ExdIIBT4、ExdIICT4。
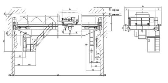
性能參數performance Parameter
本產品適用于工廠內傳爆能力不高于IIB或IIC級,引燃溫度組別不低于T4組的可燃性氣體或蒸氣與空氣形成的爆炸性氣體混合物的場所,適用的危險區域為1區或2區。本產品有地操和空操兩種,工作級別為中級。

本樣本所提供的數據及圖表僅供參考,詳細參數請致電本公司予以確認。
strength
實力雄厚
quality
質量保障
experience
經驗豐富
service
售后服務
返回頂部
掃一掃 關注我們

