產品簡介/ introduce
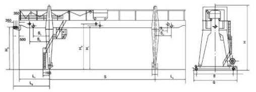
吊鉤雙梁門式起重機適用于露天倉庫或鐵路沿線進行*般的裝卸及起重搬運作業。本起重機由橋梁、大車運行機構、小車、電氣設備組成。橋架采用箱形焊接結構,大車運行機構采用分別驅動。全部機構均在操縱室內操縱。起重機導電形式分為電纜和滑觸線兩種。

本樣本所提供的數據及圖表僅供參考,詳細參數請致電本公司予以確認。
strength
實力雄厚
quality
質量保障
experience
經驗豐富
service
售后服務
返回頂部
掃一掃 關注我們

