產品簡介/ introduce
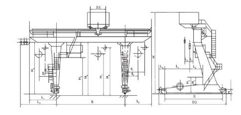
本機主要適用于碼頭、貨場等露天作業的裝卸搬運場所。該機采用L型箱形單梁、作業空間大,并便于運輸安裝維修。小車導電采用軟纜導電、大車采用電纜卷筒式或滑觸式,采用閉式操縱室、內設聯動臺控制,具有視野開闊、操作靈活、工作舒適、效率高的優點。

本樣本所提供的數據及圖表僅供參考,詳細參數請致電本公司予以確認。
strength
實力雄厚
quality
質量保障
experience
經驗豐富
service
售后服務
返回頂部
掃一掃 關注我們

