產品簡介/ introduce
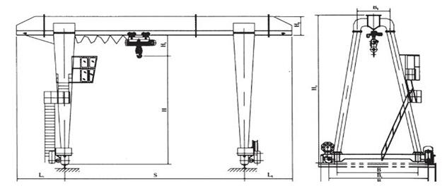
MH型電動葫蘆門式起重機與CD1、MD1等型號的電動葫蘆配套使用,是*種有軌運行的中小型起重機。其適用起重量1~20噸,適用跨度8~30米。MH型電動葫蘆門式起重機適用于車站碼頭、倉庫貨地、建筑工地、水泥制品場、工廠、水電站等露天作業場所,也適用于室內車間工作。電動葫蘆門式起重機有地面操縱和司機室操縱兩種形式。

本樣本所提供的數據及圖表僅供參考,詳細參數請致電本公司予以確認。
strength
實力雄厚
quality
質量保障
experience
經驗豐富
service
售后服務
返回頂部
掃一掃 關注我們

